Thiết kế nội thất nhà phố Củ Chi – Chị Thoa
THIẾT KẾ NỘI THẤT NHÀ VƯỜN CỦ CHI
Địa điểm: thị trấn Củ Chi – TP.HCM
Chủ đầu tư: Gia đình chị Thoa
Diện tích : 67 m2
Phong cách: Hiện đại.Tông màu trắng đen.
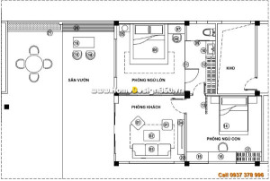
MẶT BẰNG BỐ TRÍ CÔNG NĂNG:
PHÒNG NGỦ MASTER
Thi công nội thất cho căn hộ nhỏ với 3 phòng ngủ cùng các không gian tiện ích khác nhau sẽ được Homedesign 360 giới thiệu ngay bên dưới.
Nếu bạn đang tìm ý tưởng thiết kế cho căn hộ của mình, tham khảo ngay phong cách thiết kế hiện đại với tông màu trắng đen chủ đạo. Ngoài ra, bạn có thể tìm hiểu thêm về Thiết kế nội thất biệt thự Hưng Thái 1.
Phòng khách được thiết kế sang trọng với tông màu trắng và nâu đen. Ấn tượng đầu tiên của bạn chắn chắn là sự tương phản về màu sắc nhưng lại tạo nên cảm giác hào hứng, muốn khám phá cho người xem.
Bộ sofa nệm êm ái với tông màu đen chủ đạo nổi bật giữa không gian. Bạn có thể lựa chọn thảm trải màu xám để tạo sự đột phá hơn.
Hai mặt của phòng khách đều sử dụng kính cường lực để tạo cảm giác không gian như được nới rộng hơn cũng như kết hợp được với thiên nhiên nhiều hơn.
Phòng ngủ master được thiết kế ấn tượng với hai không gian riêng biệt, phòng ngủ và phòng thay đồ độc đáo.
Điểm ấn tượng mà Homedesign 360 muốn giới thiệu đến các bạn chính là một chiếc giường ngủ kế hợp cùng chân giường thông minh, một chiếc kệ chứa đồ độc đáo. Không chỉ vậy, bạn có thể bố trí một chiếc kệ nhỏ sáng tạo ngay phía trên đầu giường của mình.
Phòng thay đồ với hệ thống tủ âm tường đặt bên cạnh phòng vệ sinh, tạo thành không gian tiện nghi khép kín. Bạn có thể chọn lựa các trang phục mà mình yêu thích ngay sau khi thư giãn tại phòng tắm
PHÒNG NGỦ BÉ
Phòng ngủ của bé được thiết kế với các hình ảnh vui nhộn. Tông màu xanh biển chủ đạo thể hiện sự mạnh mẽ và cá tính cho bé. Một chiếc giường nhỏ đặt sát tường kết hợp cùng tủ chứa quần áo nhỏ gọn. Bàn học đặt bên cạnh cửa sổ giúp đem lại nhiều ánh sáng và cảm hứng học tập, sáng tạo cho bé.
Bạn có thể thiết kế các hình ảnh hoạt hình, cây cối vui nhộn ngay trên tường để tạo sự thu hút và ấn tượng cho bé.
Khu vực sân vườn được bố trí rộng rãi với nhiều không gian xanh. Các loại dây leo vừa giúp che nắng lại đem lại cảm giác gần gũi thiên nhiên cho bạn. Không chỉ vậy, bạn có thể sử dụng một bộ bàn ghế ngoài trời để thuận tiện cho các buổi họp bạn bè, sinh hoạt gia đình hay các buổi BBQ nhé!
Bạn nên chuẩn bị hệ thống điện và nước ở khu vực ngoài trời này để đáp ứng kịp thời các nhu cầu giải trí, tụ tập của cả gia đình.
SÂN VƯỜN
Liên hệ ngay với Homedesign 360 để được tư vấn về các ý tưởng thiết kế căn hộ đầy đủ tiên nghi và phù hợp với sở thích của bạn nhé!
Xem thêm:
thiết kế biệt thự tân cổ điển
thiet ke noi that gia dinh
thiet ke noi that can ho chung cu
thi cong noi that can ho
nội thất cho căn hộ nhỏ
Xem thêm:
thiết kế biệt thự tân cổ điển
thiet ke noi that gia dinh
thiet ke noi that can ho chung cu
thi cong noi that can ho
nội thất cho căn hộ nhỏ
Chuyên mục:
Nhà Đất - Nội Thất











Không có nhận xét nào:
Đăng nhận xét